开发区˙铁山区金山街道
南阳某建筑工程有限公司“8·11”
一般车辆伤害事故调查报告
开铁区政府事故调查组
2025年9月
目 录
一、事故概述和事故性质认定
2025年8月11日8时30分许,位于金山街道辖区某快速通道项目工地内,南阳某建筑工程有限公司发生一起车辆伤害事故,事故造成1人死亡,直接经济损失约180万元。
根据《安全生产法》和《生产安全事故报告和调查处理条例》(国务院令第493号)以及《湖北省生产安全事故报告和调查处理办法》(省政府令第354号)的规定,8月15日,开发区管委会、铁山区政府成立了由管委会副主任、区政府副区长任组长,区纪(工)委监委、区应急管理局、交管支队开铁区大队、区公安分局、区总工会、区建设局以及金山街道相关同志为成员的南阳某建筑工程有限公司“8·11”车辆伤害事故调查组(以下简称事故调查组),同时聘请第三方专家对事故原因进行了技术鉴定。
事故调查组按照“四不放过”和“科学严谨、依法依规、实事求是、注重实效”的原则,通过现场勘验、查阅资料、调查取证和专家分析论证,查明了事故发生的原因、经过、人员伤亡和直接经济损失等情况,认定了事故性质和责任,提出了对有关责任人员和责任单位的处理建议,并针对事故原因及存在的问题,提出了安全生产整改措施建议。
经调查认定,该事故是一起因劳务作业人员对道路施工环境中工程车辆作业安全风险认知不足,背对来车方向且行走于道路靠中间位置,被后方工程作业车辆碾压致死的一般车辆伤害生产安全责任事故。
二、事故基本情况
(一)项目概况
某快速通道项目于2023年11月3日由黄石市某资产经营有限公司提出施工许可申请,经黄石市交通运输局批准开工的公路建设项目,路线全长43.454Km,批准总概算40.5386亿元,其中建安投资27.4786亿元。2023年9月12日,某公路公司甲、某公路公司乙、黄石市某建设集团公司作为联合体中标该项目,并共同与黄石市某资产经营有限公司签订《某快速通道项目施工总承包合同》。2025年1月3日,联合体承包人之间签订《联合体协议之补充协议》,在该项目上明确了“联合体成员段落划分和各自施工份额”,其中某公路公司乙负责实施包括“钟山大道路平村路段”工程的施工(事故发生地)。
2023年9月5日,湖北省某公路工程咨询监理有限公司、黄石市某公路工程咨询监理有限公司作为联合体与黄石市某资产经营有限公司签订监理合同,其后双方约定桥梁隧道由湖北省某公路工程咨询监理有限公司进行监理,路基路面由黄石市某公路工程咨询监理有限公司进行监理。
2023年10月7日,某公路公司乙项目经理部与南阳某建筑工程有限公司签订《黄石项目路面专业分包合同》,约定由南阳某建筑工程有限公司承接相应路面工程施工任务。2023年10月15日,黄石某工程有限公司与南阳某建筑工程有限公司签订工程运输合同,由其承担路面工程土石方、水稳、沥青等运输业务。2025年8月11日,南阳某建筑工程有限公司在该项目内钟山大道路平村路段水稳运输过程中发生一起亡人事故。
(二)事故发生单位概况
南阳某建筑工程有限公司(以下简称南阳某建筑工程有限公司),该项目路面专业分包方。2020年10月15日注册成立,企业类型:有限责任公司(自然人投资或控股),持有桐柏县市场监督管理局颁发的《营业执照》,统一社会信用代码:91411330MA9FURYxxx。公司住所:河南省南阳市桐柏县埠江镇工业园区xxx,法定代表人:胡某星。经营范围:施工劳务、公路路面工程、公路路基工程、公路工程、桥梁工程、隧道工程、市政工程、建筑工程、土石方工程等;持有《安全生产许可证》,证书编号:(豫)JZ安许证字[2021]002xxx,许可范围:建筑施工,有效期至2027年3月26日;持有《建筑业企业资质证书》,证号编号:D341303xxx,资质类别及等级:公路路面工程专业承包贰级、公路路基工程专业承包贰级等,有效期至2026年1月14日。
南阳某建筑工程有限公司共有员工20人左右,含法定代表人兼总经理胡某星以及执行董事、黄石项目负责人王某,公司承接项目后,由公司高层分别带队赴项目地开展施工作业,该黄石公路项目合同由胡某星签订后,由执行董事王某带队驻点实施。
(三)事故相关单位概况
1.黄石某工程有限公司(以下简称黄石某工程有限公司),该项目事故发生路段车辆运输方。2014年3月17日注册成立,类型为有限责任公司(自然人投资或控股);持有黄石经济技术开发区˙铁山区市场监督管理局颁发的《营业执照》,统一社会信用代码:914202000949825xxx。公司住所:黄石市黄金山开发区金山街道金山社区xxx ;法定代表人:杨某辉。经营范围:普通货物运输、土石方工程、土石方运输等。持有《安全生产许可证》,证书编号:(鄂)JZ安许证字[2019]029xxx,许可范围:建筑施工,有效期至2027年3月18日。
黄石某工程有限公司共有职工16人,自有渣土车8台,主要从事渣土运输业务。由于公司现有车辆不能满足项目需要,8月10日,公司总经理杨某辉托人联系外部车辆进场协助水稳材料运输,费用按运输量结算,本次事故涉事车辆为此次临时组织进驻的外部车辆,车牌号为鄂B650xx的重型自卸货车,车主及司机为周某洋,从资料中显示,该车辆前期在该项目上有过运输史。
2.某公路公司乙(以下简称某公路公司乙),该项目事故发生路段总承包方。2012年1月17日注册成立,企业类型:有限责任公司(自然人投资或控股的法人独资),持有武汉市硚口区行政审批局颁发的《营业执照》,统一社会信用代码:91420104587976xxx。公司住所:武汉市硚口区古田二路xxx,法定代表人:肖某勇。经营范围:许可项目:各类工程建设活动;房屋建筑和市政基础设施项目工程总承包;住宅室内装饰装修;建筑劳务分包;施工专业作业等。持有《安全生产许可证》,证书编号:(鄂)JZ安许证字[2015]010xxx,许可范围:建筑施工,有效期至2026年7月25日。持有《建筑业企业资质证书》,证号编号:D142065xxx,资质类别及等级:公路工程施工总承包特级等,有效期至2028年12月22日。
自联合体中标该项目后,某公路公司乙在该项目上成立了项目经理部(以下简称某公路公司乙项目部),某公路公司乙项目部员工90余人,设置工程技术部、安全环保监督部、施工管理部、综合办公室、测量队、试验室、合同部、物质设备部、协调部、财务部共10个部门,其中安全环保监督部7人,并配置安全总监1名。
3.黄石市某公路工程咨询监理有限公司(以下简称黄石市某公路工程咨询监理有限公司),该项目事故发生路段监理方。2001年11月22日注册成立,企业类型:有限责任公司(非自然人投资或控股的法人独资),持有黄石市下陆区市场监督管理局颁发的《营业执照》,统一社会信用代码:914202007391304xxx。公司住所:市沈下路肖铺乡xxx,法定代表人:李某兵。经营范围:许可项目:公路工程监理;建设工程监理等。该公司于2023年12月11日取得公路工程甲级资质,证书编号:交监公甲第378-20xx号,有效期至2028年12月10日。
2023年10月8日,黄石市某公路工程咨询监理有限公司对分包方南阳某建筑工程有限公司资质进行了审核,审核结果为符合分包管理规定。事故发生时无监理人员在场实施监理。
4.黄石市某资产经营有限公司(以下简称黄石市某资产经营有限公司),该项目建设单位。2016年11月21日注册成立,企业类型:有限责任公司(非自然人投资或控股的法人独资),持有黄石市工商行政管理局颁发的《营业执照》,统一社会信用代码:91420200MA48GCJxxx。公司住所:黄石市黄石大道xxx,法定代表人:吴某。经营范围:从事与交通行业相关的各类项目建设的投资(不得从事吸收公众存款或变相吸收公众存款、发放贷款等金融业务)以及经营和管理。
(四)事故发生经过
2025年8月10日,某公路公司乙项目部按施工进度安排告知南阳某建筑工程有限公司于8月11日早上6时开始实施事发路段水稳摊铺作业。
8月10日晚上,由于自身运力不足,黄石某工程有限公司总经理杨某辉托人联系外部车辆进场协助次日水稳材料运输,周某洋(事发车辆车主兼司机)得知信息后于8月11日早7时到约定地点准备装载水稳料。
由于8月10日晚上下雨,8月11日整体工作顺延1小时,11日早7时左右,某公路公司乙项目部通知搅拌站开始发料,周某洋驾驶车辆于8时左右装好水稳料过磅后出发事发地(据调查其为发料后的第四辆车)。8时27分左右,周某洋驾驶重型自卸货车(车牌号:鄂B650xx)从右幅施工道路进入左幅道路K8+222处准备倒车进入水稳摊铺点(距离大约700米)。
8时30分左右,死者包某梅位于左幅道路K7+896处背对车辆倒车方向行走过程中,被周某洋驾驶的重型自卸货车倒车(已倒车行驶320米)碾压致死。
(五)事故现场情况
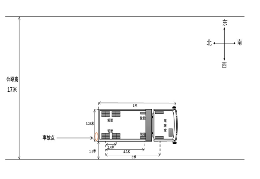
事故发生在钟山大道路平村改路路段,近金山老年公寓,该路段呈南北走向,起止桩号为K7+520-K8+220,全长700m,设计总宽35m,道路分左、右幅,两幅之间为2m宽的中央隔离带,其两侧为2.5m宽的人行道附属。道路设计结构为第一层0.8m砂石路床、第二层0.6m水稳层、第三层0.18m沥青路面。截至8月11日事发当日,道路左幅已完成0.8m砂石路床和0.4m水稳施工,右幅已经完成0.8m砂石路床施工,准备对左幅剩余0.2m水稳上基层进行摊铺施工,左幅路基宽度17m。事故发生地点位于其左幅K7+900处。(见图一、二、三)

图一:车辆行驶路线图

图二:事故现场平面示意图

图三:事故现场状况
(1)重型自卸货车,型号:ZZ3317V286GE1,车辆品牌:豪沃牌,车牌号:鄂B650xx,使用性质:货车,检验有效期:至2025年9月,强制报废日期:2035年9月11日。
(2)司机,周某洋,出生日期:1973年2月3日,初次领证日期:2003年7月11日,复审日期:2025年6月25 日,有效期至2036年2月3日,准驾车型:A2,于2022年1月从黄石市某渣土运输有限公司购入涉事车辆,属其私有车辆。
(3)调阅行车记录仪显示:8时27分21秒,货车从右幅道路正向行驶进入左幅道路;8时27分47秒,货车位于左幅道路K8+222处开始倒车;8时30分13秒,包某梅位于左幅道路K7+900处背对车辆倒车方向行走中被货车撞到,随后遭碾压;8时30分17秒,货车位于K7+896处停车;8时30分38秒,货车退出碾压位置。
(4)经现场试验,该车辆倒车时有自动“笛、笛”音响警示,声响约70分贝,倒车灯光正常。经问询,事发前司机倒车过程中未发现车辆后方有人,未额外鸣笛警示后方人员。
(5)货车从K8+222倒车至K7+900,行驶322m,用时146秒,计算货车倒车平均速度为:7.95km/h。
(六)天气及环境情况
2025年8月11日,大雨,气温27-30℃,西风2级;8时30左右,事发现场小雨,能见度不佳。
(七)人员伤亡和直接经济损失情况
事故造成1人死亡,死者包某梅,女,59岁,身份证号:xxx,家庭住址:湖北省鄂州市华容区蒲团乡xxx,系南阳某建筑工程有限公司聘请劳务人员。包某梅于2025年7月7日与南阳某建筑工程有限公司签订《黄石市建筑行业农民工简明劳动合同书》,工种为摊铺工。此次事故直接经济损失约180万元。
三、事故应急处置及评估情况
(一)事故信息接报及响应情况
8月11日8时38分,周某洋拨打110报告了事故情况。金山派出所接警后第一时间向金山街道进行了通报,金山街道以及区应急管理局相关领导掌握初步信息后及时赶赴现场核实事故情况。当天,某公路公司乙项目部将事故初步情况书面向区应急管理局进行了报告,随后,区应急管理局书面向市应急管理局、区政府值班室进行了事故报告。
(二)医疗救治和善后工作
事故发生后,周某洋拨打120急救电话请求救援,8时45分许,医护人员到达事故现场后宣布包某梅已死亡。8月11日,周某洋与死者家属就赔偿达成和解协议,当天,死者于大冶市殡仪馆火化。
(三)事故应急处置评估
事故发生后现场人员能够积极组织救援,没有发生次生事故,拨打120急救电话后,医护人员及时赶到事发现场,接报事故后政府部门到场参与事故处置,事故应急处置符合程序。
四、事故原因分析
(一)直接原因分析
当事人包某梅对道路改造施工环境中工程车辆作业安全风险认知不足,背对来车方向且行走于道路靠中间位置,未及时觉察、避让后方来车;司机周某洋疏忽大意,倒车过程中未及时发现车辆后方行人情况,以上因素同时出现是造成本起事故的直接原因。
(二)间接原因分析
1.项目安全管理不到位。一是未规划设置车辆运行专用路线。面对公路摊铺施工作业中车辆设备较多的实际,施工方未合理规划设置车辆通行专用路线,导致施工人员行进通道与车辆通行通道发生重叠。二是现场运输车辆倒车距离过长。根据现场当天作业安排,水稳料运输车从右幅施工道路进入左幅道路K8+222处倒车进入水稳摊铺点,之间距离大约700米,倒车距离过长,易造成驾驶员疲劳驾驶。三是现场未有专人监护。根据某公路公司乙项目部日常工作要求,项目分包方要安排专人进行现场监护,车辆倒车进入作业点时要有专人指挥,由于事发当天整体工作顺延,水稳运输车辆到达时,分包方并未在车辆倒车过程中安排专人进行监护、指挥,导致车辆倒车过程中与行人发生碰撞。四是安全培训流于形式。当事人包某梅虽然接受了三级安全教育培训,但从培训内容和考核试卷来看,培训和考核内容过于“标准化、规范化”,与当事人工种可能存在的安全风险密切性不高,某种程度上导致了包某梅安全意识不足,自我防护能力缺失。同时对运输车辆司机周某洋的安全培训亦是如此。
2.施工现场环境不佳。一是事发当天有雨且作业时间点为清晨时分,现场能见度不佳。二是现场安全警示标语及警示牌不足,未能给施工作业人员与司机提供必要的警示。
五、对有关责任人员和责任单位的处理建议
(一)因在事故中死亡免于或不予追究责任人员
包某梅,女,南阳某建筑工程有限公司劳务人员。对道路施工环境中工程车辆作业安全风险认知不足,背对来车方向且行走于道路靠中间位置,被后方工程作业车辆碾压致死,对事故的发生负有直接责任及主要责任,鉴于其在事故中死亡,免于责任追究。
(二)对事故有关责任人员和责任单位的行政处罚建议
1.胡某星,男,南阳某建筑工程有限公司法定代表人兼总经理。作为南阳某建筑工程有限公司主要负责人,对黄石项目路面工程施工过程中缺乏监护、指挥人员等诸多安全隐患失察,存在督促、检查本单位安全生产工作不力,未及时消除现场生产安全事故隐患情形,对事故的发生负有领导责任。违反《中华人民共和国安全生产法》第二十一条第(五)款之规定[[1]],建议移交黄石市应急管理局根据《中华人民共和国安全生产法》第九十五条[[2]]之规定给予其行政处罚。
2.南阳某建筑工程有限公司,企业安全生产主体责任落实不力,车辆运行过程中未安排专人进行现场安全管理,安全教育培训不实,导致本单位劳务人员安全风险认知不足,在项目施工过程中未及时发现并消除事故隐患,对事故的发生负有主体责任。违反《中华人民共和国安全生产法》第二十八条[[3]]、第四十一条[[4]]之规定,建议移交黄石市应急管理局根据《中华人民共和国安全生产法》第一百一十四条[[5]]、《生产安全事故罚款处罚规定》第十四条[[6]]之规定给予其行政处罚。
(三)其它处理建议
1.王某,男,南阳某建筑工程有限公司执行董事兼黄石项目项目经理。作为南阳某建筑工程有限公司黄石项目负责人,未能及时排查项目生产安全事故隐患,疏于本单位劳务人员安全教育培训,对事故的发生负有直接领导责任,建议由南阳某建筑工程有限公司根据公司管理规定对其进行处理,并将处理结果报区应急管理局备案。
2.黄石某工程有限公司,作为项目事故发生路段车辆运输方,对临时聘请的车辆司机未能实施有效的安全教育及交底,车辆作业现场未安排专人进行车辆协调管理,对事故的发生负有管理责任。建议由南阳某建筑工程有限公司根据双方合同约定对其进行处理。
3.某公路公司乙,作为项目事故发生路段总承包方,未督促分包方有效落实安全生产主体责任,对作业现场事故隐患存在巡查不到位情形,对事故的发生负有管理责任,考虑到南阳某建筑工程有限公司作为具有相应资质的合法主体,理应履行好分包方的安全生产主体责任,且某公路公司乙的管理责任与该起事故没有直接因果关系,建议由黄石市某资产经营有限公司对其项目负责人进行约谈处理,同时督促总承包方全面、系统排查项目安全隐患,并将处理结果报区应急管理局备案。
4.黄石市某公路工程咨询监理有限公司,作为该项目事故发生路段监理方。在事发时间段无监理人员在现场实施监理,现场诸多隐患未予及时发现并制止,存在监理缺位情形,对事故的发生负有监理责任,建议由黄石市某资产经营有限公司对其项目负责人进行约谈处理,并将处理结果报区应急管理局备案。
5.黄石市某资产经营有限公司,作为该项目建设单位,未督促项目相关各方履行好各自主体职责,安全培训不实、车辆运行缺乏监护等事故隐患未被及时发现和消除,对事故的发生负有首要责任。建议黄石市某资产经营有限公司向黄石市交通运输局作出深刻检查,抄送区应急管理局备案。
6.黄石市交通运输局作为行业主管部门,行业监管履职有欠缺,建议由黄石市安全生产委员会办公室对黄石市交通运输局相关负责人进行约谈处理,杜绝类似事故再次发生。
六、事故整改和防范措施
(一)全面强化现场安全管理与风险管控。 一是严格实行人车路径分离。施工方必须根据作业现场实际,科学规划并设置清晰的车辆专用通行路线及人员安全通道,通过物理隔离(如锥桶、隔离栏等)、地面标识等方式实现硬质分离,严禁人车混行。二是优化车辆作业流程。立即审查并调整运输车辆倒车方案,最大限度缩短倒车距离,原则上长距离倒车必须改为顺向行驶或设置中转调头区,避免因长距离倒车导致驾驶员疲劳和观察盲区持续存在。三是严格落实旁站监护制度。在所有车辆作业区域,特别是倒车、转弯等高风险环节,分包单位必须安排经过考核合格的专人负责指挥和监护,使用明确的旗语、口哨或通信设备与司机保持联动,确保车辆周边危险区域无人进入。四是实施项目监理单位及业主方对现场安全措施落实情况的每日巡查与签字验收制度,对监护缺位、人车混流等隐患立即责令停工整改。
(二)切实提升安全教育培训的针对性与有效性。 一是深入开展差异化、实景化安全技术交底与培训。施工单位必须改变“标准化、格式化”的培训模式,针对不同工种(如摊铺作业人员、运输车司机)面临的特定风险,采用现场观摩、事故案例警示等方式,重点培训本岗位风险辨识、避险路线、安全站位及车辆盲区知识,确保从业人员知险、识险、避险。尤其要强化“严禁背对来车方向行走”、“不得在车辆通道中间停留”等针对性要求的反复灌输与考核。二是严格培训效果考核评估。所有培训必须实行闭卷考试与实际操作技能考核相结合,考核内容必须与岗位风险高度相关,考核不合格者严禁上岗。同时对司机进行经常性的防御性驾驶技能培训和突发情况应急处置考核,提升其警觉性和应急反应能力。
(三)着力改善作业环境与强化应急保障。 一是提升现场安全警示水平。在施工区域的关键点位,尤其是车辆通行路线、转弯及倒车区域,必须足量设置醒目的反光警示牌、爆闪灯、广角镜等,明确提示“前方车辆作业”、“注意避让”、“禁止通行”等内容,利用声光信号增强警示效果。二是加强恶劣天气下的施工安全管理。制定并落实雨天、雾天等能见度不良天气下的专项施工方案,视情增派监护人员、降低车速、缩短作业半径甚至暂停作业,确保安全条件满足要求后方可施工。三是完善现场应急处置机制。项目部必须针对车辆伤害等事故类型,制定简明易懂的现场应急处置卡,并定期组织演练,确保一旦发生险情,能够迅速、有效地进行先期处置与报告,最大限度减少损失。
开发区·铁山区南阳某建筑工程有限公司
“8·11”车辆伤害事故调查组
[[1]] 《中华人民共和国安全生产法》第二十一条:生产经营单位的主要负责人对本单位安全生产工作负有下列职责:(一)建立健全并落实本单位全员安全生产责任制,加强安全生产标准化建设;(二)组织制定并实施本单位安全生产规章制度和操作规程;(三)组织制定并实施本单位安全生产教育和培训计划;(四)保证本单位安全生产投入的有效实施;(五)组织建立并落实安全风险分级管控和隐患排查治理双重预防工作机制,督促、检查本单位的安全生产工作,及时消除生产安全事故隐患;(六)组织制定并实施本单位的生产安全事故应急救援预案;(七)及时、如实报告生产安全事故。
[[2]] 《中华人民共和国安全生产法》第九十五条 生产经营单位的主要负责人未履行本法规定的安全生产管理职责,导致发生生产安全事故的,由应急管理部门依照下列规定处以罚款:
(一)发生一般事故的,处上一年年收入百分之四十的罚款;(二)发生较大事故的,处上一年年收入百分之六十的罚款;(三)发生重大事故的,处上一年年收入百分之八十的罚款;(四)发生特别重大事故的,处上一年年收入百分之一百的罚款。
[[3]]《中华人民共和国安全生产法》第二十八条 生产经营单位应当对从业人员进行安全生产教育和培训,保证从业人员具备必要的安全生产知识,熟悉有关的安全生产规章制度和安全操作规程,掌握本岗位的安全操作技能,了解事故应急处理措施,知悉自身在安全生产方面的权利和义务。未经安全生产教育和培训合格的从业人员,不得上岗作业。
[[4]] 《中华人民共和国安全生产法》第四十一条 生产经营单位应当建立安全风险分级管控制度,按照安全风险分级采取相应的管控措施。生产经营单位应当建立健全并落实生产安全事故隐患排查治理制度,采取技术、管理措施,及时发现并消除事故隐患。事故隐患排查治理情况应当如实记录,并通过职工大会或者职工代表大会、信息公示栏等方式向从业人员通报。其中,重大事故隐患排查治理情况应当及时向负有安全生产监督管理职责的部门和职工大会或者职工代表大会报告。
[[5]] 《中华人民共和国安全生产法》第一百一十四条 发生生产安全事故,对负有责任的生产经营单位除要求其依法承担相应的赔偿等责任外,由应急管理部门依照下列规定处以罚款:(一)发生一般事故的,处三十万元以上一百万元以下的罚款;(二)发生较大事故的,处一百万元以上二百万元以下的罚款;(三)发生重大事故的,处二百万元以上一千万元以下的罚款;(四)发生特别重大事故的,处一千万元以上二千万元以下的罚款。
[[6]]《生产安全事故罚款处罚规定》第十四条 事故发生单位对一般事故负有责任的,依照下列规定处以罚款:(一)造成3人以下重伤(包括急性工业中毒,下同),或者300万元以下直接经济损失的,处30万元以上50万元以下的罚款;(二)造成1人死亡,或者3人以上6人以下重伤,或者300万元以上500万元以下直接经济损失的,处50万元以上70万元以下的罚款;(三)造成2人死亡,或者6人以上10人以下重伤,或者500万元以上1000万元以下直接经济损失的,处70万元以上100万元以下的罚款。

